Residential Addition

Residential Expansion & Cabana

Design, plans and build by Ivan Vazquez

This residential expansion project consisted of expanding two bedrooms of the house, and continuing the porch and wrapping the existing spanish tile roof around the newly expanded section without changing the look of the front of the house. A cabana/guest-room was also added to the property as well.

Working within the constraints of the existing property, we designed and built an addition that respects the original architecture while providing modern amenities. The cabana serves as a versatile space that can function as a guest suite, entertainment area, or home office.

Project Highlights

  • Custom design matching existing home architecture
  • Versatile space suitable for multiple uses
  • Full permitting and code compliance
  • High-quality materials and craftsmanship throughout
  • Energy-efficient design for Tucson's climate

Project Documentation

Plans, permits, and project details

Cover Sheet
Page 1

Cover Sheet

Project title page with overview and submission information for the expansion and cabana addition.

View Full PDF
Site Plan
Page 2

Site Plan

Property layout showing the positioning of the new expansion and cabana in relation to the existing structure.

View Full Size
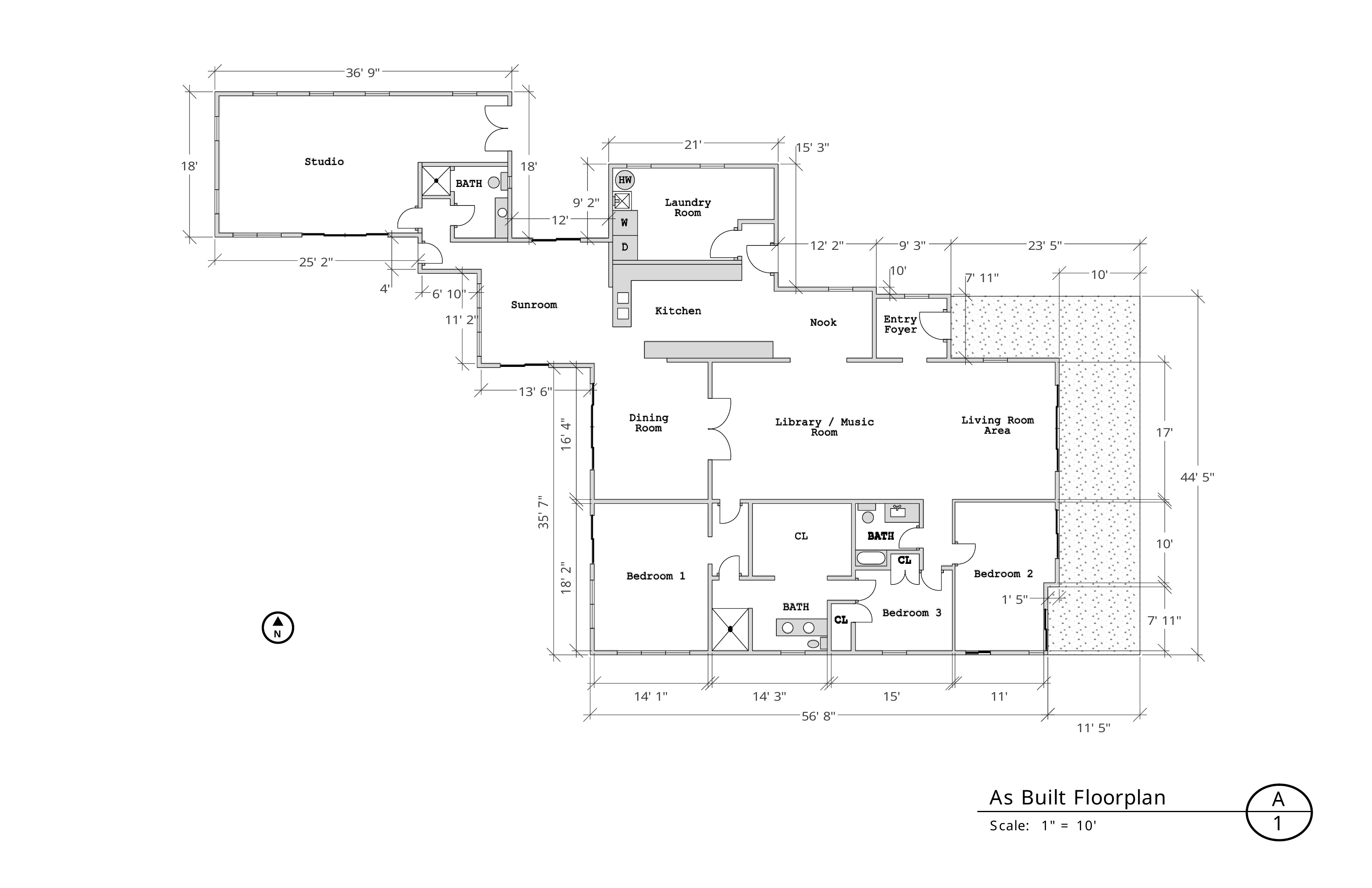
Floor Plans
Page 3

Floor Plans

Detailed floor plans showing room layouts, dimensions, and interior organization of the expansion.

View Full Size
Elevations
Page 4

Building Elevations

Exterior elevation views showing the architectural design and how the new structure integrates with existing.

View Full Size
Construction Details
Page 5

Construction Details

Technical construction details and specifications for building the expansion and cabana structure.

View Full Size
Additional Details
Page 6

Supplemental Details

Additional architectural and construction details for proper implementation of the design.

View Full Size
Coming Soon

Building Permit

Official building permit documentation from the City of Tucson showing approval for the expansion and cabana construction project.

Document Coming Soon
Coming Soon

Construction Progress

Photo documentation showing the construction process from foundation to completion, highlighting key stages of the build.

Photos Coming Soon
Coming Soon

Final Inspection Report

Official final inspection documentation certifying that all work meets code requirements and has been approved by city inspectors.

Document Coming Soon
Coming Soon

Completed Project Photos

Professional photos of the finished cabana and expansion showing the quality of craftsmanship and final design details.

Photos Coming Soon

Planning an Expansion or Addition?

We'd love to help you maximize your property's potential with a custom design.

Start Your Project