ADU / Casita

Lind Rd Unit 2

Origin Plans and Design by third party. Design Modifications and build by Vazquez Design Build.

This ADU (Additional Dwelling Unit) project in Central Tucson showcases our commitment to quality construction. Built from the ground up on an existing residential property, this unit provides additional living space while maintaining the character of the neighborhood.

Project Highlights

  • Solid concrete slab foundation for durability
  • Quality wood framing with attention to structural integrity
  • Efficient interior layout maximizing living space
  • Traditional stucco exterior fitting Tucson's architectural style
  • Full compliance with local building codes and ADU regulations

Project Documentation

Progress photos and construction phases

Foundation Pour
Photo

Foundation Pour

The initial concrete slab foundation being poured. This solid base provides a level, stable platform for the entire structure and is critical for the longevity of the building.

View Full Size
Wall Framing
Photo

Wall Framing

Exterior wall frames going up. Each wall is carefully constructed with quality lumber and precise measurements to ensure structural integrity and proper alignment.

View Full Size
Interior Framing
Photo

Interior Layout

Interior walls taking shape to define the living spaces. The layout optimizes the available square footage to create a functional and comfortable living environment.

View Full Size
Roof Trusses
Photo

Roof Structure

Engineered roof trusses being installed. These prefabricated components provide superior strength and allow for efficient construction while maintaining structural standards.

View Full Size
Sheathing
Photo

Exterior Sheathing

The structure enclosed with exterior sheathing panels. This layer adds rigidity to the frame and provides a weather-resistant barrier before the final exterior finish.

View Full Size
Stucco Finish
Photo

Stucco Application

Traditional stucco exterior being applied. This classic Tucson finish provides durability, energy efficiency, and an attractive appearance that complements the neighborhood.

View Full Size

Official Approved Plans

City-approved architectural plans and specifications. Built from third-party plans with extensive field modifications to improve the space's functionality and visual appeal.

Lind 2nd ADU - Approved Plans

Complete architectural plans including site plans, floor plans, elevations, and construction details as approved by the City of Tucson.

PDF Document 11 Pages
Cover Page
Page 1

Cover Sheet

Project information and title sheet

Site Plan
Page 2

Site Plan

Property layout and positioning

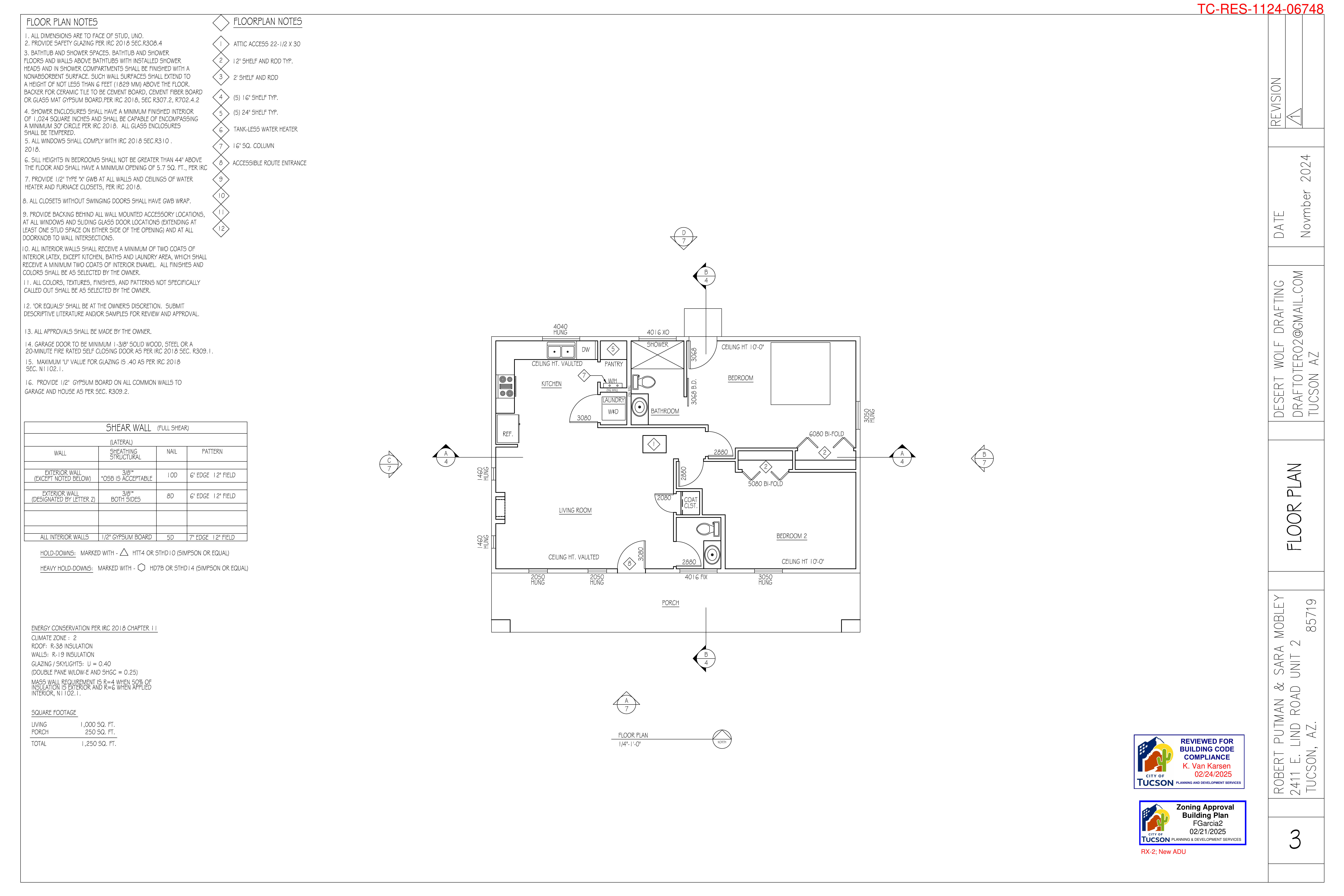
Floor Plan
Page 3

Floor Plan

Interior layout and dimensions

Elevations
Page 4

Elevations

Exterior views and details

Construction Details
Page 5

Construction Details

Technical specifications

Additional Plans
Page 6

Additional Details

Supplemental drawings

Interested in a Similar Project?

Let's discuss how we can create the perfect ADU or addition for your property.

Get in Touch