1403 E Silver Street
This comprehensive remodel project transformed an existing 1,217 square foot single-family home in Tucson's Samos neighborhood. The project demonstrates our expertise in complex structural modifications, systems upgrades, and thoughtful space planning.
The scope of work consisted of a full interior remodel including the merger of the kitchen and dining room, removal of load-bearing brick walls with the addition of engineered support beams, complete replacement of a rotted Arizona room roof, and whole-house systems upgrades. This project required careful structural engineering and coordination across multiple trades.
Project Highlights
- Full kitchen/dining room merger with structural beam installation
- Removal of load-bearing brick walls with engineered glulam beams
- Complete Arizona room roof replacement due to rot damage
- New powder room created from existing Arizona room space
- Full bathroom remodel with modern fixtures
- Washer/dryer relocation with new utility connections
- Whole-house electrical upgrade including new 125-amp sub-panel
- Complete sewer line replacement throughout house
- Replacement of all windows and plaster ceilings with insulation
- Underground electrical service replacing overhead lines
Project Details
Location:
Samos, Tucson AZ 85719
Size:
1,217 SF Living Space
Zoning:
R-1 Residential
Approval Date:
April 2024
Demolition Plans
Original layout and planned modifications
The Journey: From Demo to Dream Home
An entertaining look at the transformation process
The Epic Saga of the Main Beam
A structural engineering adventure in 8 acts
Kitchen: Out with the Old
Picture Window Transformation
Behind the Walls: Systems Upgrades
Arizona Room Reconstruction
Bathroom Transformations
The Final Result
All the hard work pays off
Approved Construction Plans
Complete architectural, structural, plumbing, and electrical plans
Complete Remodel Plans - Approved
Full construction documentation including site plans, demolition plans, floor plans, elevations, foundation details, framing plans, plumbing, and electrical systems.
Site Plan & Cover Sheet
Property layout, setbacks, and project scope overview
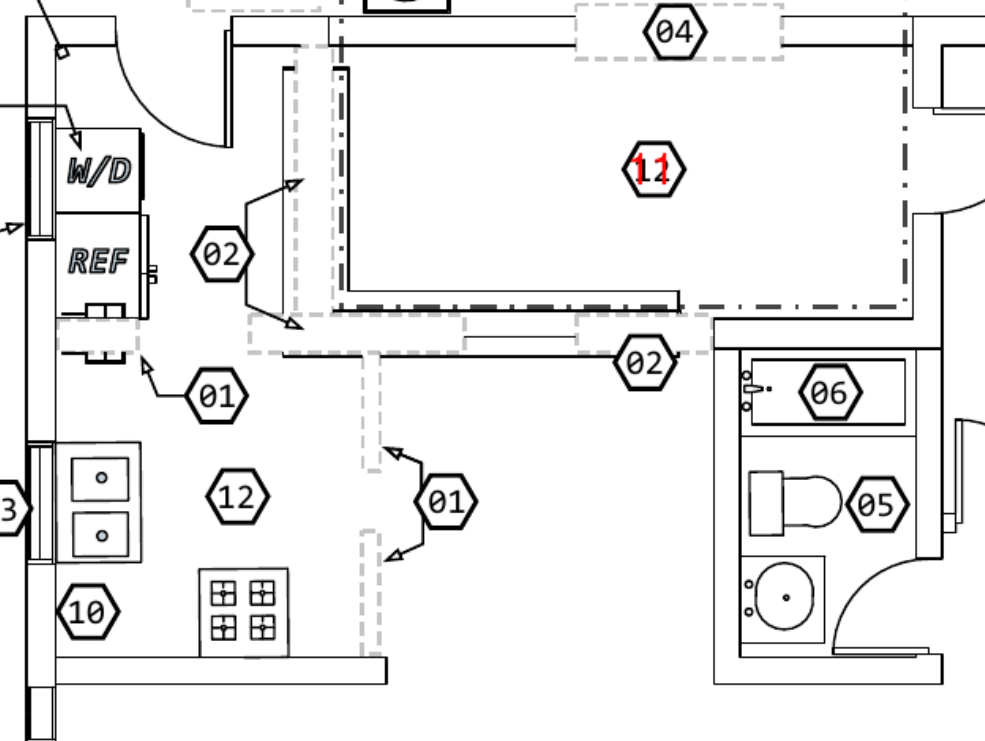
Demolition Plan
Detailed demolition scope including wall removals and systems
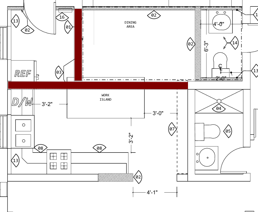
Proposed Floor Plan
New layout with merged kitchen/dining and powder room
Building Elevations
Exterior views and window schedule
Foundation Plan
Footings for new support posts and beams
Roof Framing Plan
Arizona room roof replacement and structural beams
Plumbing Plan
Complete sewer replacement and fixture relocations
Electrical Plan
125-amp sub-panel and complete rewiring
Electrical Notes
Code compliance and installation specifications
Planning a Major Remodel?
We specialize in complex renovations with structural modifications and systems upgrades.
Start Your Project